Bản vẽ thiết kế nhà phố đẹp 3 tầng chúng tôi giới thiệu ngay sau đây có diên tích 5x12m đã đáp ứng được nhu cầu của chủ đầy tư là anh Hiệp tại Hà Nam. Chi phí đầy tư xây dựng dự kiến khoảng 750 tỷ đồng. Còn gia đình bạn đã tìm được phương án thiết kế ưng ý nhất chưa? Hãy tham khảo và bổ sung thêm ý tưởng nhé.
Mẫu thiết kế nhà phố 3 tầng tại Hà Nam mặt tiền 5m
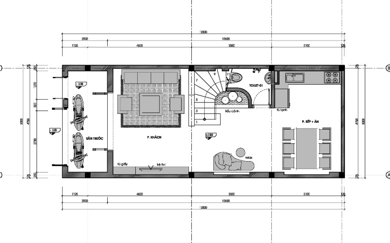
Ngôi nhà phố 3 tầng này thực sự là một tác phẩm kiến trúc để lại nhiều ấn tượng tốt cho người nhìn. Sự sáng tạo được thể hiện ở cả kiến trúc ngoại thất và công năng. Anh Hiệp đã ấn hài lòng với phương án thiết kế này. Dưới đây là mặt bằng công năng và phối cảnh mẫu thiết kế nhà phố 3 tầng mặt tiền 5m tại Hà Nam.![]() |
| Thiết kế nhà phố 3 tầng 3 phòng ngủ - Mặt bằng tầng 1 |
![]() |
| Thiết kế nhà phố 3 tầng 3 phòng ngủ - Mặt bằng tầng 2 |
![]() |
| Thiết kế nhà phố 3 tầng 3 phòng ngủ - Mặt bằng tầng 3 |
Đối với mẫu nhà phố đẹp 3 tầng này các không gian được phân bổ một cách hợp lý tại các tầng. Kích thước mỗi phòng đều được các KTS tính toán để tận dụng tối đa không gian và phù hợp với mục đích sử dụng. Ngoài ra ngôi nhà còn thiết kế thêm một khoảng thông tầng không chỉ có giá trị làm đẹp mà còn tại được khoảng thông khí, liên kết các không gian lại với nhau.
>>> Tham khảo: Mẫu nhà phố đẹp 3 tầng mặt tiền 5m hiện đại tại Hà Nam
Trên cơ sở phương án bố trí mặt bằng các KTS đã thiết kế bản vẽ phối cảnh 3D mẫu nhà phố 3 tầng này như sau:
![]() |
| Thiết kế nhà phố 3 tầng 3 phòng ngủ - Hình ảnh phối cảnh |
Do đặc điểm liền kề sát vách nên phần KTS chỉ tập trung chủ yếu vào mặt tiền của ngôi nhà. Thêm một nét độc đáo nữa đó chính là toàn bộ hệ thống cửa kính được thiết kế với kích thước khá lớn. Tầng 2 được ốp đá cao cấp mang đến ý nghĩa tạo không gian sống gần gũi, mở rộng nhất có thể.
Nguyễn Hương
Nguồn: Kiến Tạo Việt



